Sélection
0
ACCÈS ADHÉRENT
Fnaim-974
  • Accueil
  • Ventes
  • Locations
  • La chambre
    • Nos métiers
    • Vesta
    • Adhérer
  • Nos actualités
  • Nos formations
  • Nos adhérents
  • Nos partenaires
VotreRecherche
Dans un rayon de
Budget
Entre € et €
Min. €
Max. €
Surface
Entre m2 et m2
Min. m2
Max. m2
Pièces
Entre pièces et pièces
Min. pièces
Max. pièces
  1. Accueil
  2. St Andre
  3. Vente
  4. Terrain
  5. 470m²
< Retour

Terrain
470 m²

St Andre - 97440

120 000 €
Descriptif du bien
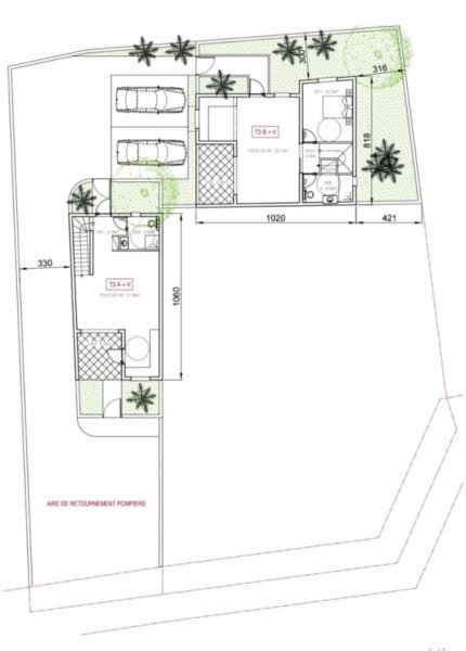
L'agence RUN INVEST a le plaisir de vous proposer ce beau terrain de 470m2 à Saint André, Son agencement est particulier et permettrait d'envisager deux constructions. Plat, il est partiellement clos de murs. On vous attend pour visiter, Tarif 120 000EUR (comprenant nos honoraires à la charge du vendeur) Opportunité rare sur le secteur. Viabilités à proximité - réseau de tout à l'égout sur le terrain. Précision importante : une étude avec un plan d'implantation avait été réalisé pour deux constructions de type F4 et F3. Pour plus d'informations ou organiser une visite, contactez RUN INVEST IMMOBILIER au 0262 46 90 26. Lien vers notre barême d'honoraires : https://www.runinvest.fr/i/redac/honoraires Ou cliquez sur ' Nos honoraires ' à partir de la page d'accueil de notre site internet.
Détails du bien
  • Superficie (m²) 470
  • Code postal 97440
Diagnostic de
performances énergétiques
DPE
GES
Ce bien est proposé par
RUN INVEST
RUN INVEST
Voir les biens de l'agence
1123 Avenue De Bourbon
97440 St Andre
02 6 2 46 9 0 26
runinvest@gmail.com
WWW.RUNINVEST.RE
Nos outils
Nous contacter pour ce bien

* champs obligatoire

Les informations communiquées sont destinées à "Chambre FNAIM OCEAN INDIEN" éditrice de ce site. Vous bénéficiez d'un droit d'accès, de modification, de rectification et de suppression de vos données personnelles (Loi n°2004-575 du 21 juin 2004 pour la confiance dans l'économie numérique). Pour les exercer, adressez vous à l’adresse de l’Editeur.

Partager ce
bien
Partager ce
bien

* champs obligatoire

Les informations communiquées sont destinées à "Chambre FNAIM OCEAN INDIEN" éditrice de ce site. Vous bénéficiez d'un droit d'accès, de modification, de rectification et de suppression de vos données personnelles (Loi n°2004-575 du 21 juin 2004 pour la confiance dans l'économie numérique). Pour les exercer, adressez vous à l’adresse de l’Editeur.

Calculatrice financière
Mensualités :

* Champs obligatoires

Ces biens
peuvent vous intéresser

  • Vente
    Terrain
    97440 st andre
    230 000 €
  • Vente
    Terrain
    97440 st andre
    125 750 €
  • Vente
    Terrain
    97440 st andre
    137 000 €
FNAIM
Notre top ville
à la Réunion
  • St Denis
  • St Pierre
  • Le Tampon
  • Ste Clotilde
  • La Possession
  • Moufia
  • St Paul
  • Ste Marie
  • St Gilles Les Bains
  • La Saline Les Bains
  • Ste Suzanne
  • St Andre
  • Le Port
  • Bois De Nefles
  • Bras Panon
  • Terre Sainte
  • St Leu
  • Tampon 17eme Km
  • Belle Pierre
  • Ravine Des Cabris
  • St Benoit
  • St Denis Chaudron
  • St Louis
  • L Etang Sale
Voir toutes les villes

FNAIM OI © 2026 | Tous droits réservés |

  • Plan du site
  • Mentions légales
  • Partenaires
  • Contact DPO
ETAGE 2 IMMEUBLE, 5A Chem. Grand Canal,Saint-Denis
97490, La Réunion
+262692 29 78 09
Réalisé par
Les sites de la fédération : FNAIM Loire Atlantique, FNAIM Drome Ardeche, FNAIM Aix Marseille Provence, FNAIM Alpes Maritimes, FNAIM Vaucluse, FNAIM Alpes de Haute Provence - Hautes Alpes , FNAIM Var

Comme beaucoup, notre site utilise les cookies

On aimerait vous accompagner pendant votre visite. En poursuivant, vous acceptez l'utilisation des cookies par ce site, afin de vous proposer des contenus adaptés et réaliser des statistiques !

Paramétrer

Cookies fonctionnelsCes cookies sont indispensables à la navigation sur le site, pour vous garantir un fonctionnement optimal. Ils ne peuvent donc pas être désactivés.

Statistiques de visitesPour améliorer votre expérience, on a besoin de savoir ce qui vous intéresse !
Les données récoltées sont anonymisées.

?

Google Analytics

Annonces personnaliséesOn garde le contact ? Ces cookies nous permettent de vous proposer des contenus publicitaires adaptés à vos centres d'intérêts.

?

Google Ads

?

Facebook Pixel

?

Youtube

En savoir plus